English
Español
Português
русский
Français
日本語
Deutsch
tiếng Việt
Italiano
Nederlands
ภาษาไทย
Polski
한국어
Svenska
magyar
Malay
বাংলা ভাষার
Dansk
Suomi
हिन्दी
Pilipino
Türkçe
Gaeilge
العربية
Indonesia
Norsk
تمل
český
ελληνικά
український
Javanese
فارسی
தமிழ்
తెలుగు
नेपाली
Burmese
български
ລາວ
Latine
Қазақша
Euskal
Azərbaycan
Slovenský jazyk
Македонски
Lietuvos
Eesti Keel
Română
Slovenski
मराठी
Srpski језик Nam omnis th3-in I h trabem welding lineas quod fabricari byJinfenfg Weldcut erit XII menses warantum, quae sunt summum efficientiam apparatus ad augendam productivity pro fine-users ex ferro structuram, pontem, constructione.
|
Exemplar |
Zhj15 |
ZJ18 |
Zhj20 |
|
T-trabem Webeight (H) |
CC ~ 1500mm |
200-1800 |
200-2000mm |
|
Web Crassitudo (D) |
VI ~ 12mm |
VI ~ 19mm |
VI ~ 30mm |
|
Luckewidth (b) |
CC ~ 800mm |
CC ~ 1000mm |
|
|
Flangethickness (T) |
VI ~ 25mm |
VI ~ 40mm |
|
|
Trabem longitudinem (l) |
(IV) ~ 15000mm |
(IV) ~ 15000mm |
(IV) ~ 15000mm |
|
Trabem materiales |
Q235 |
||
|
Welding Type |
Submerged arcum transversum fillet Welding |
||
|
Welding Power Source |
Single filum aut geminae filum type |
Unum filum |
Unum filum |
|
Welding output celeritate |
CC ~ M mm / min |
||
|
ADCUCO: |
Die XLV Description |
||
|
HYDRAULICUS |
≤14 MPA |
||
|
Pandora Recuperatio System |
2Sets |
||
|
Volume de Pandora Hopper |
II × 50l |
||
|
Input TRADUCTOR Roller: |
(XII) mm |
||
|
Output TRADUCTOR Roller: |
(XII) mm |
||
|
Main Machina Power |
18.0KW |
||
|
HYDRAULICUS System: |
1set |
||
|
Erigens |
I set, integrated in apparatus |
||
|
Vox copia: |
AC / CCCLXXX V / L HZ / 3ph |
||
|
Erigens |
6-40mm |
||
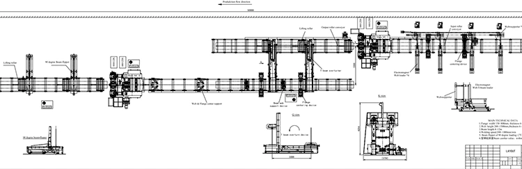
III, in I h trabem welding lineae habet ut combined munus h trabem, T, trabem ecclesiam, welding et flange deformatio erigens post welding. Et sic potest verius et cursim animadverto H trabem et T trabem production.it habet sequenti commoda: simplex operatio, minus labore sumptus et parva operimentum area.
Haec linea habet duas libitum Welding processus pro vobis eligere secundum structural ferro laminam crassitudine ad esse conflatum:
OPTION A: Single arc twin wire welding of which the deposition rate is 40% higher than the general single arc single wire submerged arc welding, Sot it is especially suitable for the structure steel thickness of which the thickness is less than 20mm.
Optio B: unum arcus unum filum welding.it idoneam maior rhoncus de laminam crassitudine welding.
Et vexillum Zhj3-in I h trabem welding linearum consistit ex uno input cylindro mensam, principalis welding et erigens statione, outputroller Table.on Pandora et Righting Station ibi InstalledWith vexillum et Clamping et LABORS et Web.The et Clamping et Welding Power et Welding et Taxi et Clamping et Welding Box.
I. Standardzhj3-in I h trabem welding lineae

II. Optio I:
Ut per alium petitiones a customers, nos quoque providere configuratione pro thezhj3-in I h trabem welding lineas sicut haec:
Secundum in Latin III-in-I h trabem welding lineas, ibi addere unum paro of web-loader, whichconsists de IV PCs de Magnet Loading Armate et 4pcs de Magnet et tenens ferro Web.

III. Optio II:
Ut per alium petitiones a customers, nos quoque providere configuratione pro thezhj3-in I h trabem welding lineas sicut haec:
Secundum in Latin III-in-I h trabem welding lineas, ibi addere unum paro of web-loader, whichconsists de IV PCs de Magnet Loading Armate et 4pcs de Magnet et tenens ferro Web.
Ex supra, possumus addere unam paro of XC gradus trabulus flipper in output cylinder mensam pro evertere ad solvendum trabem in horizontali positione.

III. Optio III:
Some customers may need to increase theproduction output, they need one welding line to consists of 2 sets of welding station.The first welding station for welding 1st flange and web to form a T beam, the 2nd one for welding the welded T-beam and 2nd flange to form a H beam.
3,1 Sic fundatur in Latin III-in-I h trabem welding lineas, ibi addere unum paro of web-loader et 4pcs de Magnet et Tela Telae Web are 2pcs de Magnet et tenens ferro Web.
3,2 addere I paro of T, trabem subvertit ad conversus in T trabem in CLXXX gradus et ponendo in T-trabem in 2 LABIUM in input cylnge in mensa 2nd welding statione.
3,3 ad unum paro of XC gradus trabper flipper in output cylindro mensa of2nd welding statione pro evertere ad solvendum trabem in horizontali loco.
T trabem et h, trabem productio influunt
III-in-I integrated h, trabem welding lineas installed in users, officinas